Unsere Säle Veranstaltungsräume

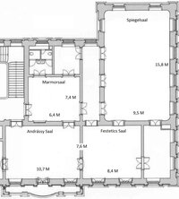
alaprajzDas Festetics-Palais bietet mit seinen vier repräsentativen Festsälen und erstklassigem Service den perfekten Ort für Ihre Veranstaltung.

Wir bieten Ihnen einen traumhaften Veranstaltungsort mit Parkmöglichkeiten in der Innenstadt von Budapest, ein individuell zusammenstellbares, vielfältiges und hochwertiges Catering sowie einen ständige Pförtnerdienst, der es unseren Gästen ermöglicht, ohne Zeitlimit die Festsäle des Hauses in Anspruch nehmen zu können.

*Der Spiegelsaal kann aufgrund seiner Lage nur zusammen mit dem Marmorsaal vermietet werden.

Der imposante Festsaal eignet sich hervorragend für Hochzeiten, Galadinner, Bälle, Empfänge, Konzerte und jegliche Art von repräsentativen Veranstaltungen.

Details

Der Saal aus Kunstmarmor diente früher als Empfangssalon. Heute wird der Marmorsaal ebenfalls v. a. als Vorraum bzw. Empfangsraum genutzt. Durch den Saal erreicht man den prunkvollen Spiegelsaal.

Details

Der Festetics-Saal kann einzeln angemietet werden, eignet sich aber eher als zusätzliche Räumlichkeit in Kombination mit den anderen Sälen.

Details

Der Saal ist ideal für kleinere (Presse-) Konferenzen, Workshops und Vorträge.

Details

Der mit Pflastersteinen gepflasterte Hof (270 m²) ist von drei Seiten mit einer prunkvollen Fassade umgeben.

Details

Das Treppenhaus im spätbarocken bzw. klassizistischen Stil mit seiner Zwerggalerie, den charakteristischen Laternen und dem eleganten roten Teppich führt zu den Festsälen im ersten Stock.

Details

Haben Sie Fragen?Wir stehen Ihnen gerne zur Verfügung!

Über uns Medienberichte

Bitte melden Sie sich für unseren Newsletter an: Sie erhalten dann exklusive Angebote!